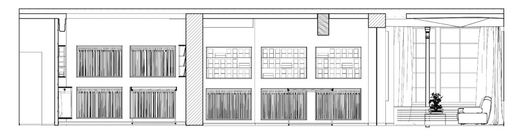
Métaphores produces and distributes exclusive fabrics for the world of interior design. Andrea Mosca was responsible for the renovation of the former showroom, located on one of the most beautiful squares in Paris, Place de Furstemberg. This part of the Saint-Germain-des-Prés district is known both for its luxury fabric boutiques and its art galleries.The new Creative and Image Director expressed the desire to work around the concept of an officine — a pure, clear space. For this project, she developed a new concept of “flacons”: tool-like tubes in which the different collections would be presented in a completely unprecedented form.To meet the brand’s expectations, the project was literally “tailored” around the Flacons concept through the “metaphor” of the art gallery.The project challenges the traditional idea of a fabric store: instead of a container filled with endless large fabric hangers, multicolored sofas, and chairs, the showroom is conceived as a gallery with a purified space. The existing floors, walls, and ceilings were painted white.Beneath the layer of paint, the materials still bear witness to their age, revealing their scars and patterns. The choice of a white floor enhances the natural light and emphasizes the minimalist character of the boutique. The woodwork is in French oak, while the shelves, table structures, and details are in polished brass — materials rooted in tradition.The boutique is composed of three connected spaces: the entrance, the central area, and the rear. In the first room, three large oak frames surround the Métaphores fabrics like paintings; their beveled edges form a detail that recurs throughout every furnishing element in the store.In the second and third parts of the boutique, the fabrics are presented on oak display units
arranged on two levels: in the uppersection, they are enclosed in the “flacons” placed on polished brass shelves, and in the lower section, the fabrics are presented more conventionally on larger sample hangers.For the workspace, two tables in oak and brass were designed, and the tabletop shape continues the recurring frame motif.In the central area of the boutique, two vertical panels of dotted glass are positioned in the space to create a virtual pathway and visually shield the first table while forming a more intimate area. The pure and rigorous aesthetic of the showroom is revealed through the dialogue of noble materials such as oak, brass, and glass, brought together in a grammar of essential forms.Métaphores distinguishes itself through a rigorous selection of natural, noble, raw, and generous fibers, enhanced by refined dyeing and finishing processes. The starting point of the commission was a dreamlike vision, later expressed through an architectural identity that is precise and appropriate.From that moment, it is seen and experienced as a metaphorical journey in which only the coherence between the creative dimension and reality matters. The space was conceived around a white setting; the concept naturally respects the volumes as well as the personality of the materials — stone and wood — their grain, their texture, their veining.Alternating between matte and glossy, white gently envelops the flat surfaces, opening perspectives and bathing the space in light. Contemporary in spirit, this showroom — with its large openings framed by curtains made from a selection of fabrics from the collection — allows the creations to fully express their character.
Here is a link to an article published by Designboom

















